 
			 
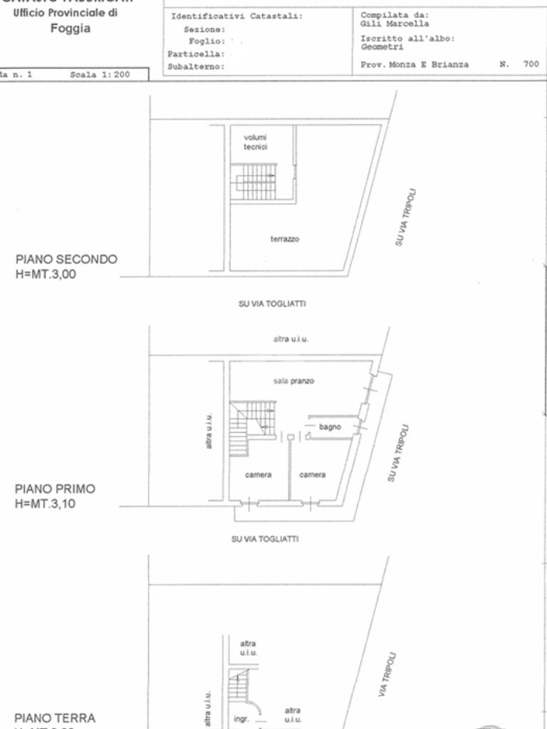
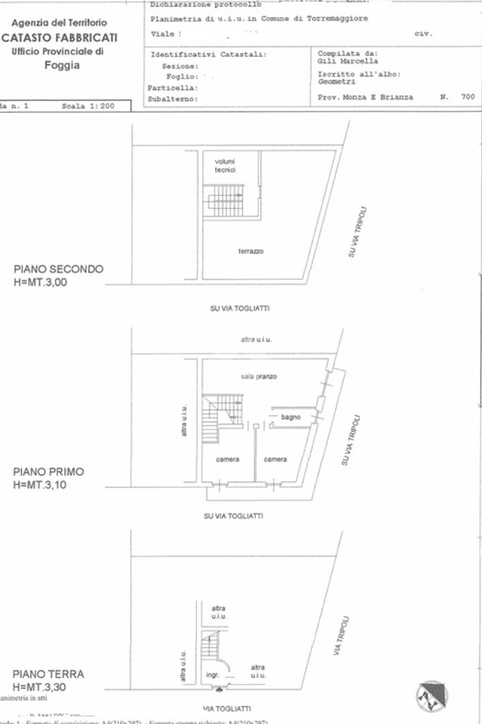
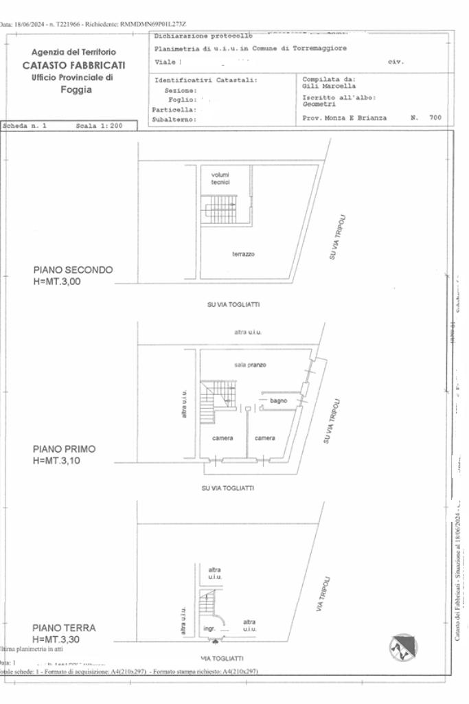
				In posizione strategica, con affaccio diretto su Via Togliatti, proponiamo in vendita una soluzione indipendente al primo piano, caratterizzata da un' ottima esposizione angolare che garantisce ambienti luminosi ed ariosi. L' immobile si compone di : ingresso su disimpegno, soggiorno con angolo cottura, camera matrimoniale, cameretta e bagno.
Un balcone angolare corre lungo tutto il perimetro dell' abitazione, perfetto per godere della luce naturale in ogni momento della giornata.
Dal disimpegno una comoda scala in marmo conduce al piano superiore, dove si trova una mansarda composta da unico vano con camino, con accesso diretto ad un ampio terrazzo angolare da vivere e valorizzare, perfetto per un gazebo, angolo relax o mini giardino pensile.
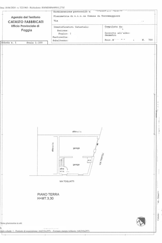
Completa la proprietà una spaziosa autorimessa posta al piano terra con accesso da Via Tripoli, perfetta per piu' veicoli o mezzi agricoli (dato l' altezza delle volte) o da adibire anche a deposito, laboratorio o taverna e con annesso ampio locale con servizio.
La soluzione si presenta in buone condizioni, subito abitabile, termoautonoma a metano, con videocitofono ed impianto di videosorveglianza.
PER RESTARE SEMPRE IN CONTATTO CON NOI SEGUICI SU:
#Faceboook: Tecnocasa Torremaggiore
#Faceboook: Gruppo Tecnocasa Torremaggiore
#Instagram: Tecnocasa Torremaggiore
DEVI FARE UN MUTUO ?
Presso la nostra agenzia c'è la possibilità, ogni settimana, di incontrare un Collaboratore di Kiron Partner SpA, la società di mediazione creditizia del Gruppo Tecnocasa, per effettuare una consulenza reddituale.
La consulenza è gratuita.
Ti interessa visionare l'immobile?