Porzione di bifamiliare in vendita

Torremaggiore, Zona San Matteo
€ 225.000
4 locali 4 locali
125 Mq 125 Mq
2 bagni 2 bagni

Porzione di bifamiliare in vendita

Torremaggiore, Zona San Matteo

Descrizione annuncio

Lo Studio San Sabino di Torremaggiore propone in vendita una interessante villetta bifamiliare, situata nella zona di ''San Matteo'', perfetta per chi desidera spazio, tranquillità ed una atmosfera riservata, lontana da ogni stress.

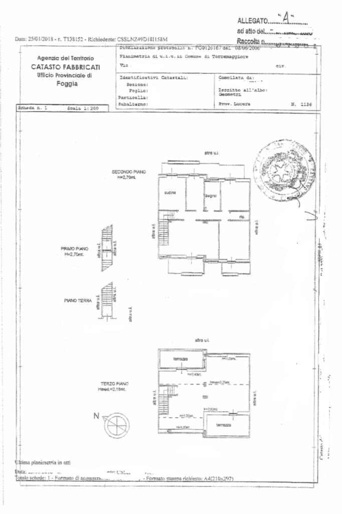
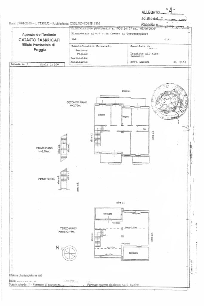
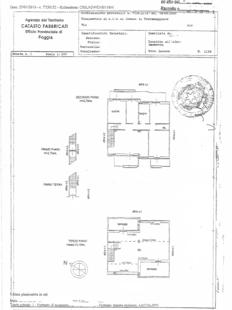
L' immobile, caratterizzato da una doppia esposizione che garantisce luminosità durante tutto l' arco della giornata, si apre su di un ampio soggiorno, perfetto per momenti di convivialità in famiglia o tra amici. La cucina abitabile, rappresenta il cuore della casa.

La zona notte è ben distribuita grazie ad un comodo disimpegno che comprende una spaziosa camera matrimoniale, due camerette ( oppure 1 cameretta ed 1 studio) ed un bagno dotato di vasca. Completa il piano un pratico ripostiglio.

Al livello superiore troviamo un' ampia mansarda, versatile e luminosa, grazie alla presenza di due terrazzi vivibili ed arricchita da un secondo bagno.

La proprietà include inoltre un ampio garage al piano terra di mq. 60 circa con corte antistante e giardino retrostante, ideale per chi ama gli spazi esterni o necessita di ulteriore spazio esterno.

Soluzione ideale per famiglie alla ricerca di indipendenza ed ampi spazi interni ed esterni.

Vuoi ricevere maggiori informazioni e fissare un appuntamento? Puoi contattarci al n. 0882384000 oppure sfrutta il servizio whatsapp al n. 3484408174.

Presso la nostra agenzia c'è la possibilità, tutte le settimane, di incontrare un Collaboratore di Kiron Partner SpA, la società di mediazione creditizia del Gruppo Tecnocasa, per effettuare una consulenza reddituale.

LA CONSULENZA E' GRATUITA

Mostra tutto

Nelle vicinanze

Scuole Scuole
Giardino Scolastico
890 m
Parco scolastico
1,5 Km
Scuola Emilio Ricci
1,5 Km
Campo scolastico
1,6 Km
Farmacia Farmacia
Farmacia Agricola
940 m
Farmacia Tamburrelli
1,0 Km
Farmacia Niro
1,2 Km
Ospedali Ospedali
ASL
780 m
Ospedali
820 m
Pronto Soccorso
840 m
Supermercati Supermercati
Supermercato Convì
290 m
Supermercato Italia
950 m
Market Liv' & 'Ndò
1,0 Km
Conad
1,6 Km
Lidl
2,2 Km
Negozi Negozi
Panificio da Maselli
700 m
Fiore Abbigliamento
710 m
Moda Vip
820 m
De Andreis Camicie
1,2 Km
Panificio Giuliani
1,3 Km
Bar Bar
Caffè San Giacomo
850 m
Bar Pineta
890 m
Bar-Pasticceria Saracino
950 m
Bar Jolly 2
970 m
Saloon
1,1 Km
Ristoranti Ristoranti
L'Ottava Meravigliake
820 m
Pizzeria il Gufo
1,1 Km
Pizzeria dell'Arco
1,1 Km
Il Vicoletto
1,1 Km
La Tana
1,1 Km
Mostra tutto

Caratteristiche

Rif.:
61200105
Piano:
1 di 1 (Piano medio)
Box:
1
Posti auto:
1
Balconi:
3
Terrazzi:
2
Mostra tutto
Prezzo Prezzo
€ 225.000
Rata mutuo Rata mutuo
€ 1.073 / mese
Spese annue Spese annue
€ 0
Proponi il tuo prezzoProponi il tuo prezzo
Immobile valutato con T·Valuta

Classe Energetica

D
D
D
D
D
D
D
D
D
EP globale non rinnovabile:
55.00 kW h/m² anno
EP invernale del fabbricato:
EP estiva del fabbricato:
Anno di costruzione:
2006
Riscaldamento:
Autonomo
Tipo impianto:
A radiatori
Tipo alimentazione:
Metano

Ti interessa visionare l'immobile?

Fissa un appuntamento  Fissa un appuntamento

Richiedi informazioni

Clicca su Leggi per aprire l'informativa
* Questi campi sono obbligatori

Calcola il tuo mutuo

Semplice e senza impegno
Anticipo

( % )
Mutuo

( % )

pochi semplici passi

inserisci i tuoi dati
Questionario completato
Grazie per aver richiesto un appuntamento senza impegno con un nostro Consulente del Credito e Assicurativo.

Hai inserito correttamente tutti i dati necessari e a breve riceverai una e-mail con un link da convalidare per inviare i tuoi dati.
Affiliato
Studio San Sabino D.I.
Corso Matteotti, 260 71017 Torremaggiore (FG)

Il nostro staff


  • Mattia Anna Cinquepalmi
    Coordinatrice

  • Severino Esposto
    Affiliato

  • Alma Tarazhi
    Coordinatrice

  • Rosa Ciarfaglia
    Collaboratrice
Corso Matteotti, 260 71017 Torremaggiore (FG)
Zona: Torremaggiore
Mostra su mappa
Orari: LUNEDI' - VENERDI': 09.00 - 13.00 / 16.00 - 20.30. SABATO: 09.00 - 13.00
Affiliato
Studio San Sabino D.I.
Corso Matteotti, 260 71017 Torremaggiore (FG)

2026 Tecnocasa Franchising S.p.A. - P. IVA 08365160152 - Via Monte Bianco 60/A 20089 Rozzano (MI). Ogni agenzia ha un proprio titolare ed è autonoma. Privacy policy | Policy utilizzo | Cookie policy